



Размер бани:
2х3 м
Размер бани:
2х3 м
Изменение планировки:
Расчет - бесплатно
Изменение планировки:
Расчет - бесплатно
Срок строительства:
от 3 дней
Срок строительства:
от 3 дней
Вид стройки:
Под усадку
Вид стройки:
Под усадку

Площадь застройки:
6м2
Площадь застройки:
6м2

Жилая площадь:
6м2
Жилая площадь:
6м2
В базовый комплект "баня-сруб под усадку" входит *:
1. Опорно-столбчатый фундамент из бетонных блоков 300х300х300мм;
1.2 Свайный или ленточный фундамент оплачиваются отдельно по договоренности;
2. Гидроизоляция между фундаментом и брусом;
3. Стены/Перегородки из бруса сосна сечением 100х150мм (брус естественной влажности. под усадку). Укладка бруса производится по принципу "тычок-ложок" на джутовое волокно толщиной 6-12мм. (15 рядов бруса по стенам).
Брус строганный с двух сторон, фаска у бруса снимается с четырех углов. Если стены делать из бруса 150х150; 150х200; 200х200 стоимость пересчитывается;
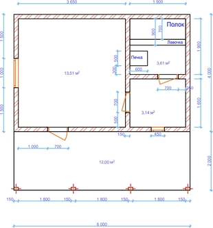
Варианты планировки, представленной на сайте, ориентировочные - расположение перегородок, дверей и окон согласовывается при строительстве индивидуально с заказчиком.
4. Пол - из доски 40мм сосна, строганная с одной стороны со снятыми фасками с 2-х углов;
5. Потолок из доски обрезной 25х150;
6. Лаги пола брус 100х150;
7. Балки перекрытия брус 100х150; 100х200; 150х200;
8. Двери/Окна;
9. Двускатная крыша, покрытая профнастилом с полимерным покрытием, конёк и ветровые планки. Цвет профнастила на выбор;
10. Фронтоны и карнизы подшиваются доской обрезной 25ммх150мм, строганной;
11. Сборка сруба (монтаж на деревянные шканты);
12. Бесплатная доставка в пределах +80 км от Новосибирска;
* Фото бань, могут отличаться от базовой комплектации, стоимость, базового комплекта бани "под ключ" соответствует, указанной на сайте. Все доп. работы и изменения "базового комплекта" оплачиваются дополнительно.
В отличие от наших конкурентов, мы используем лаги пола и балки перекрытия брус 100х150; 100х200; 150х200.
При сборке сруба успользуем Качественные деревянные шканты а не гвозди или арматуру!!!!!!
Монтаж сруба выполняется Русскими специалистами с многолетним опытом!!!
В базовый комплект "баня-сруб под усадку" входит *:
1. Опорно-столбчатый фундамент из бетонных блоков 300х300х300мм;
1.2 Свайный или ленточный фундамент оплачиваются отдельно по договоренности;
2. Гидроизоляция между фундаментом и брусом;
3. Стены/Перегородки из бруса сосна сечением 100х150мм (брус естественной влажности. под усадку). Укладка бруса производится по принципу "тычок-ложок" на джутовое волокно толщиной 6-12мм. (15 рядов бруса по стенам).
Брус строганный с двух сторон, фаска у бруса снимается с четырех углов. Если стены делать из бруса 150х150; 150х200; 200х200 стоимость пересчитывается;
Варианты планировки, представленной на сайте, ориентировочные - расположение перегородок, дверей и окон согласовывается при строительстве индивидуально с заказчиком.
4. Пол - из доски 40мм сосна, строганная с одной стороны со снятыми фасками с 2-х углов;
5. Потолок из доски обрезной 25х150;
6. Лаги пола брус 100х150;
7. Балки перекрытия брус 100х150; 100х200; 150х200;
8. Двери/Окна;
9. Двускатная крыша, покрытая профнастилом с полимерным покрытием, конёк и ветровые планки. Цвет профнастила на выбор;
10. Фронтоны и карнизы подшиваются доской обрезной 25ммх150мм, строганной;
11. Сборка сруба (монтаж на деревянные шканты);
12. Бесплатная доставка в пределах +80 км от Новосибирска;
* Фото бань, могут отличаться от базовой комплектации, стоимость, базового комплекта бани "под ключ" соответствует, указанной на сайте. Все доп. работы и изменения "базового комплекта" оплачиваются дополнительно.
В отличие от наших конкурентов, мы используем лаги пола и балки перекрытия брус 100х150; 100х200; 150х200.
При сборке сруба успользуем Качественные деревянные шканты а не гвозди или арматуру!!!!!!
Монтаж сруба выполняется Русскими специалистами с многолетним опытом!!!
Первый платёж от 10%
Для проф. бруса 50%
Первый платёж от 10%
Для проф. бруса 50%
Цена из бруса:
Цена из бруса:
Брус: 100х150мм
Цена: 461 537 P 435 000 P
Другие проекты бань
Баня-сруб под усадку 6x6м
Габариты: 6x6м
Площадь бани: 36м2
Площадь веранды: ---
Брус: 100х150мм
Цена: 500 000 P 465 000 P
Баня-сруб под усадку 4x4м + веранда 2x4м
Габариты: 4x4м
Площадь бани: 16м2
Площадь веранды: 8м2
Брус: 100х150мм
Цена: 398 462 P 330 000 P
Габариты: 6x6м
Площадь бани: 36м2
Площадь веранды: 12м2
Брус: 100х150мм
Цена: 600 000 P 565 000 P
Баня-сруб под усадку 6x6м + веранда 2x6м
Пишите в WhatsApp:
СВЯЗАТЬСЯ С НАМИ
СВЯЗАТЬСЯ С НАМИ
+7(383) 299-01-04
+7(913) 917-01-04
E-MAIL: les@ptk-sibles.ru
E-MAIL: les@ptk-sibles.ru
Внимание! Данный сайт носит информационный характер и ни при каких условиях не является публичной офертой, которая определяется положениями Статьи 437. Гражданского кодекса РФ. Для получения подробной информации о стоимости указанных услуг, пожалуйста, обращайтесь к нашим менеджерам.
Режим работы:
Пн-Вс с 8-00 до 19-00
без обеда
Данный сайт был разработан сотрудниками компании «Unicode-Profi»
ТЕЛ.:
ТЕЛ.:
ИНН 5402045890, ОГРН 1185476071824
Фундамент
Опорно-столбчатый из цементобетонных блоков
Наружные стены из бруса
100x150 мм | 150x150 мм
Основание бани – нижний обвязочный венец бруса
100x150 мм | 150x150 мм
Сборка угловых соединений нижнего бруса
В полдерева, для утепления пазов прокладывается льноволокно
Высота потолка
2,10 м
Лаги пола
Брус 100х150 мм через 70 см
Стены, Перегородки
Из строганого бруса 100х150 или 150*150
Стропила
Брус 40х150 мм через 1,0 м
Обрешетка
Доска 25х150 мм через 25-30 см
Фронтоны, свесы
Обшиваются вагонкой"С" или доской (строганной) 25х150 внахлёст
Кровля
Металлочерепица или Металлопрофиль красного, зеленого или коричневого цвета (на выбор)